Освещение на натяжном потолке в ванной комнате. Выбор подходящих светильников
- Освещение на натяжном потолке в ванной комнате. Выбор подходящих светильников
- Освещение в туалете с натяжным потолком. Разновидности светильников
- Потолок освещение в ванной. Требования к освещению ванной комнаты
- Освещение в ванной комнате без натяжных потолков. Освещение в ванной комнате: ТОП-200 лучших идей с фото
- Светильники в ванную комнату на потолок. Основная информация о светильниках в ванной
- Натяжной потолок в ванной комнате
Освещение на натяжном потолке в ванной комнате. Выбор подходящих светильников
Материал натяжных потолков накладывает некоторые ограничения в выборе ламп. Светильники должны соответствовать определённым требованиям. И далеко не все модели с ними совместимы. Так, например, очень важна степень нагрева лампочек во время работы. И в зависимости от типа натяжного полотна используются разные лампы, имеющие допустимую предельную мощность.
Для ПВХ-полотна мощность светильника должна составлять не более 40 ватт, иначе материал начнёт плавиться, и вернуть первозданный вид ему уже не удастся – только замена. Если потолки установлены тканевые, это немного расширяет ваши возможности. Они выдерживают более широкий интервал температур, поэтому допускается использование мощных 60-ваттныех лампочек.
Таким образом, если у вас в ванной комнате установлены натяжные потолки, выбор светильников ограничивается дорогостоящими светодиодными и галогенными моделями (имеются в виду только вид галогенок, работающих на малом напряжении в 12 V). Такой выбор обуславливается тем, что эти лампы практически не нагреваются, а значит, полотно не растягивается под воздействием температур.

Типы ламп
Однако такие светильники требует установки дополнительных элементов в цепь: блока питания и понижающего трансформатора. От обычной розетки с 220 V они работать не будут. Это также способствует ощутимому удорожанию осветительного проекта.
В общем-то, для любой другой комнаты с плёночным потолком можно использовать и компактные люминесцентные светильники, они так же не сильно нагреваются во время работы. Однако они очень плохо переносят повышенную влажность, частые перепады температур, которые не редкость в ванной комнате. Лампы быстро начинают тускнеть и гораздо раньше срока выходят из стоя. Но это не значит что освещение ими ванных комнат невозможно.
Традиционные лампы накаливания в ванных могут использоваться только в подвесных люстрах, удалённых от поверхности полотна не менее чем на 30 см. И плафоны в них должны быть направлены вниз, иначе восходящие потоки разогретого воздуха будут провоцировать пожелтение белых потолков и выгорание красок — у цветных. Ну и конечно, об энергоэффективности таких светильников говорить не приходится.
Освещение в туалете с натяжным потолком. Разновидности светильников
Чтобы разобраться в вопросе, какие лампы стоит ставить в ванной, следует сначала узнать, каковы общие принципы освещения комнат.
Часто бывает, что ванна отделена от остального пространства перегородкой. Тогда в зоне ванны (площадь этой зоны обычно от 4 кв. м) рекомендуется установка двух ламп в дополнение к основному свету.
Среди осветительных электроприборов, применяемых в сочетании с потолками натяжного типа, выделяют следующие разновидности светильников:
- точечные (встраиваемые и накладные);
- подвесные (люстры).
Иногда (в больших комнатах, в сочетании с многоуровневыми потолками) эти два вида комбинируют.
В ванных очень популярны точечные лампы. Они прекрасно подходят для натяжных потолков. Данный тип ламп позволяет равномерно освещать все помещение. Точечные осветительные электроприборы преимущественно используются для определенных зон, чтобы площадь была равномерно освещена.
Точечные источники света классифицируются по марке цоколя – G5.3, GX53, G9.
Кроме того, есть накладные и встраиваемые точечные светильники . Практическая разница между ними состоит в расстоянии между натяжным и основным потолками. Если вы не хотите чересчур занижать натяжной потолок (более 15 см от основного), то нужно использовать накладные лампы.
Светильники с цоколем G5.3, оборудованные светодиодными либо галогеновыми лампами, имеют один важный минус – они не рассеивают свет из-за глубокой посадки лампочки внутри цоколя, и в комнате могут оставаться неосвещенные участки . Цоколь GX53 решает эту проблему, поскольку лампа выступает из него. Но такая конструкция не всегда удовлетворяет домовладельцев с точки зрения дизайна.
Светильники с маркой цоколя GX53 могут быть оснащены энергосберегающими лампами, помимо обычных светодиодных (следует иметь в виду, что таким лампам требуется время, чтобы разгореться).
Лампы с цоколем G9 сильно отличаются от предыдущих двух типов, поскольку не встраиваются внутрь натяжного потолка. Это позволяет увеличить его высоту (за счет уменьшения расстояния между натяжным и основным потолком), и такая конструкция обеспечивает хорошее рассеивание света по комнате.
Очень важно проверять, чтобы у выбранного встраиваемого или накладного светильника был хороший охлаждающий радиатор (как правило, алюминиевая решетка). Натяжные потолки – термочувствительный элемент интерьера, они быстро потеряют вид, если будут излишне нагреваться от ламп.

Отличным вариантом могут стать подвесные светильники достаточной яркости. Они экономичны и просты в использовании. Кроме того, их монтаж проще, чем встраиваемых или накладных точечных ламп; поэтому люстры устанавливают довольно часто.
Но следует помнить, что нормальная рабочая температура люстры намного выше, а для натяжного потолка это неблагоприятно. Нужно правильно рассчитывать расстояние от люстры до потолка (не менее 15, до 60 см).
Таким образом, если ваша ванная имеет большую площадь, то стоит подумать об установке подвесного светильника. В сочетании с натяжным потолком люстры используются еще и для того, чтобы подчеркнуть его дизайн (например, с многоуровневыми натяжными потолками).
Помимо перечисленных используются панельные светильники и светодиодные ленты. Первые применяются реже, так как лучше подходят для служебных помещений. Если вы всё же хотите установить панельный светильник в ванную на натяжной потолок, то плюсом этих ламп может оказаться хорошее рассеивание света – установка может быть оправдана, если нужно осветить большую площадь.
Светодиодные ленты применяются для декоративного освещения. Как правило, их скрывают в конструкции потолка, чтобы получить мягкую, рассеянную подсветку.
Потолок освещение в ванной. Требования к освещению ванной комнаты
Повышенный уровень влажности накладывает определенные ограничения на использование осветительных приборов и электропроводки. Вода и пар повышают опасность возникновения короткого замыкания и поражения током, поэтому при проведении электромонтажных работ важно соблюдать ряд требований.
По фактору риска ванную условно разбивают на зоны. Самая опасная расположена в радиусе 70-100 см по горизонтали и 2,5 м по вертикали от источника воды.
Здесь нельзя устанавливать розетки и высоковольтные агрегаты. Все элементы проводки обязательно должны быть закрытыми. В целях пожарной безопасности кабели прокладываются в гофрированной трубке из негорючего материала.
В ванную комнату рекомендуется устанавливать светильники на 12В или 24В, но не более. Такие приборы не причинят вреда человеку, даже если на токопроводящие части попадает вода или произойдет короткое замыкание. Подключение осуществляется через трансформатор, который дополнительно защищают от попадания воды или переносят в другую комнату.
Светильники должны быть оснащены плафонами или влагонепроницаемым корпусом. Открытые приборы быстро выходят из строя, поскольку из-за высокой влажности контакты окисляются.
Проводку в ванной обязательно заземляют. Розетки и выключатели лучше располагать за пределами помещения. Если такой возможности нет, то сверху устанавливают защитные крышки, не допускающие попадания внутрь пара и капель, когда разъем не используется.
Одна из проблем, с которой часто приходится сталкиваться в ванной комнате — появление ржавчины на металлических деталях из-за высокой влажности и контакта с бытовой химией. Поэтому лучше выбирать светильники из материалов, не подверженных коррозии (нержавеющая сталь, алюминий, пластик, стекло). Металлические изделия должны быть обязательно обработаны порошковыми красками или защищены полимерным покрытием.
Освещение в ванной комнате без натяжных потолков. Освещение в ванной комнате: ТОП-200 лучших идей с фото
Важность освещения в ванной
Обустраивая маленькую ванную, стоит по-особенному отнестись к вопросу ее освещения, ведь правильный выбор также может визуально ее увеличить. Это видно на фото освещения в ванной. С помощью освещения удастся сформировать микроклимат в помещении, что чрезвычайно важно, особенно в случае ванных комнат без окон.

В ванных комнатах с ограниченным пространством дневной свет играет особую роль. В ситуации, когда в ванной комнате нет окна, одним из решений будет, например, вставить стеклоблоки в стену, выходящую на другую хорошо освещенную комнату.

Если нет возможности использовать такой вариант, очень важно, чтобы хотя бы один из источников света имел цвет, подобный дневному свету.

Существует общепринятое правило, что в ванной должно быть не менее двух видов освещения. Функцию общего освещения обычно выполняет светильник, расположенный в центре потолка. Однако стоит помнить, что он не должен висеть слишком низко, так как это может ограничить свободу движений и действий в комнате.

Специфика электропроводки в ванной комнате
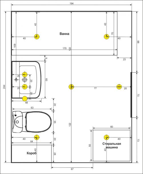
Решать, как расположить светильники в ванной, какие светотехнические приборы будут использоваться в системе, необходимо на подготовительном этапе перед ремонтом. Проводка в этом помещении выполняется скрытым способом, требуется:
- создать точную схему прокладки кабелей;
- выбрать провода с учетом мощности всех электроприборов;
- выполнить безопасное, надежное подключение.
В монтаже электричества в ванной используются алюминиевые, медные кабели сечением 4 мм, 2,5 мм соответственно. Для определения точного размера для конкретного помещения общий показатель мощности делится на 220. Однако самостоятельно делать выбор расходных материалов для системы освещения не стоит. Лучше доверить эту работу специалисту, который будет делать проводку.

Пример плана системы освещения
Наличие точной схемы размещения источников света позволяет провести в нужных местах штробление стен, потолка, уложить кабель по оптимальным маршрутам, обеспечить удобное пользование светильниками.
Каким должно быть освещение в ванной
В первую очередь важно продумать схему монтажа и оценить зоны распределения света. Его должно быть достаточно, но не слишком много: чрезмерно яркие лучи испортят общее впечатление от дизайна.
Ориентироваться надо на:
- размер и стиль ванной комнаты;
- все основные функциональные зоны — они должны быть подсвечены равномерно;
- расположение светильников с учетом зеркал (яркие блики могут искажать отражение);
- дополнительное освещение (место под подоконником, по периметру ванны, у раковины);
- подключение источников света: это лучше сделать отдельными линиями, чтобы от выключателей срабатывали разные светильники, а не все сразу.
В ванной комнате выделяют несколько функциональных зон: ванну или душевую кабину, раковину с зеркалом и свободный участок, где можно переодеться и сложить вещи. Иногда дизайнеры предлагают варианты подсветки полок в навесном шкафу, а для просторного помещения — тумбы, вешалки и даже полноценные шкафы.
Сколько света нужно в ванной?
Идеальным вариантом для ванной является достаточное количество света, приближенного к дневному. Таким образом получается создать максимально естественную освещенность для натурального облика и нанесения макияжа. Так, как совмещенный санузел может использоваться для разных нужд, в нем лучше установить комбинированный тип освещения.
Для маленькой ванной комнаты в хрущевке уместен один центральный свет в комбинации с двумя или тремя дополнительными настенными светильниками.
В большом помещении желательна установка нескольких приборов верхнего света. Чем больше количество светильников, тем меньшим размером и мощностью они должны отличаться. Для просторной ванной комнаты подойдет зональное освещение, благодаря которому получится добиться выделения отдельных функциональных участков, а также подчеркивания конфигурации пространства.
На выбор освещения влияют следующие важные факторы:
- Стилевое оформление интерьера и цветовая палитра. Чем темнее оттенок стен, тем большей интенсивностью должны обладать источники света.
- Размер и форма ванной комнаты.
- Особенности зонирования.
- Разновидности светильников, их максимальная мощность и способ крепежа.
- Наличие отражающих поверхностей в виде зеркал, плитки и прочего.

В первую очередь перед началом ремонта в комнате, продумывают систему света и конкретные места, в которых будут размещаться его источники. Предусматривают проводку кабелей, сооружение гипсокартонных фальш-балок и прочего.
Светильники в ванную комнату на потолок. Основная информация о светильниках в ванной
Освещение в ванной комнате требуется подбирать не только по принципу «нравиться – не нравиться». В этом помещении неблагоприятные условия для работы электрических приборов – повышенная влажность и постоянные перепады температуры. Плюс к этому, естественного освещения нет почти никогда, а если и есть, то окно небольшое.
Мнение эксперта
Алексей Бартош
Специалист по ремонту, обслуживанию электрооборудования и промышленной электроники.
Задать вопрос экспертуВажно! По международным нормам освещенность в ванной комнате определено стандартом и составляет 200 Люксов на 1 м кв. Уменьшение интенсивности света способно привести к ухудшению зрения, повлиять на психическое состояние.
Качественное потолочное освещение выполняет такие задачи:
- Обеспечение норм безопасности.
- Стилевое единство освещения от отделки комнаты.
- Создание яркого искусственного света, который при этом не напрягает глаза.
Освещение в ванной без окна
Потолочные светильники успешно используются для зонирования и выделения отдельных участков ванной. Даже в самой маленьком санузле требуется отделить:
- Умывальник. Освещение яркое, ведь именно здесь приводят себя в порядок после сна.
- Ванная, душевая – мягкое, умеренное, теплое свечение. Здесь человек расслабляется и отдыхает.
Конечно, нужно два, а то и больше отдельных светильников, чтобы можно было создавать подобные эффекты.
Безопасность
Ванна – самое влажное помещение в доме, поэтому есть особые требования касательно всех элементов проводки и приборов освещения. Конкретней:
- Корпус потолочных светильников – герметичный, закрытого типа.
- Необходимая степень влагозащищенности от IP67.
- Расположение светильников, розеток на расстоянии не меньше 50 см от кранов с водой.
- Электропроводка скрытая или в специальных коробах, что исключают горение в случае короткого замыкания.
Касательно степени влагостойкости осветительного прибора, учитывается также участок расположения в ванной. Принцип определения степени защиты базируется на простом правиле: чем ближе к воде, тем сильнее защита. В любом случае в ванной нельзя использовать светильники с влагозащитой менее 44. То есть они защищены от пылевых частиц размером 1 мм и от брызг, которые в ванной не редкость.
Расшифровка индекса IP
Дизайн
Подбор дизайна светильника важен, ведь его внешний вид может как подкрепить интерьерное решение, так и нарушить его. Не стоит использовать модели с дешевыми пластиковыми плафонами – они испортят любой дизайн. Ненамного дороже обойдутся простые стеклянные модели, без лишнего декора. Металлические ретросветильники на потолке смотрятся оригинально, но не стоит забывать, что влажность для металла также ни к чему. Светильник начнет ржаветь и красоты ему это не прибавит.
Важно! При выборе дизайна не стоит забывать о безопасности прибора.
Натяжной потолок в ванной комнате
Ванная комната «радует» неровными потолками с видимыми стыками плит и следами опалубки? Соседи сверху регулярно заливают, вынуждая делать ремонт намного чаще, чем хотелось бы? Необходимо визуально увеличить высоту небольшого санузла? У всех перечисленных проблем есть единое решение – натяжной потолок в ванной.
Конструкция, состоящая из полимерного полотна и несущего профиля, закреплённого по периметру помещения, имеет ряд преимуществ перед другими способами отделки:
- Быстрота монтажа и отсутствие подготовительного этапа работ, например, выравнивания поверхностей, очистки их от краски или штукатурки, заделки трещин и т. д.
Кроме того, в процессе установки не повреждаются прилегающие стены и не возникает необходимость убирать строительный мусор.
- Устойчивость к влажной среде.
- Гигиеничность и простота в уходе, антистатические свойства.
- Надежная защита от протекания сверху.
- Возможность спрятать электрическую разводку и другие инженерные коммуникации.
- Разнообразие декоративных решений, что позволяет использовать технологию для интерьеров любого стиля.
Также к плюсам натяжных потолков следует отнести долговечность – в среднем они служат не менее 15 лет, сохраняя первоначальный внешний вид и эксплуатационные характеристики. Важно выбрать качественное полотно, доверить его установку специалистам, а затем обеспечить грамотный уход.
Несмотря на очевидные достоинства технологии, некоторые сомневаются, можно ли делать натяжной потолок в ванной ? Есть опасения, что между полотном и бетонным перекрытием может появиться плесень, которую будет трудно обнаружить, а, следовательно, и вовремя устранить.
Совет: Чтобы избежать подобной неприятности, необходимо на этапе монтажа позаботиться об устройстве вентиляции в натяжном потолке . Перекрытие и прилегающие стены под полотном, обрабатывают раствором антисептика – желательно сделать это несколько раз для усиления эффекта.
Если плесень всё-таки появилась, конструкцию демонтируют и очищают поражённые поверхности. После чего полотно можно установить на прежнее место.
Высокую стоимость натяжных полков и ограничения по ширине, также относят к их минусам . И всё же это один из лучших видов отделки для ванной (см. фото ):
Какой натяжной потолок выбрать для ванной комнаты
Не все отделочные материалы одинаково «хорошо» чувствуют себя в специфическом микроклимате санузлов. Это утверждение верно и для натяжных полотен. Они бывают двух видов:
- из ПВХ-плёнки
- на тканевой основе (полиэстер с полиуретановой пропиткой)
Первый вариант оптимален для помещений с высокой влажностью, второй разрешается применять с большими ограничениями: только в просторных комнатах, где обеспечена хорошая естественная вентиляция.
Тканевый натяжной потолок
Эта разновидность обычно используется для интерьеров вАбсолютно лишённые блеска полотна с приятной фактурой, внешне не отличаются от традиционной штукатурки. Их можно многократно окрашивать, декорировать фотопечатью или расписывать вручную. Натяжные потолки с рисунком выглядят не хуже, чем настоящие фрески.
Плюсы тканевых полотен:
- большая ширина (до 5 м), позволяющая перекрывать помещения одним полотном, без дополнительных соединений;
- простота монтажа – в отличие от аналогов из ПВХ, здесь не потребуется помощь профессионалов и специальное оборудование;
- прочность, устойчивость к механическим воздействиям;
- невосприимчивость к низким или высоким температурам;
- воздухо- и паропроницаемость, благодаря чему на потолке не развивается грибок и плесень;
- экологичность;
Минусы, если речь идёт о ванной комнате:
- тканевые полотна не защитят в случае затопления: при большом количестве воды они не только начнут пропускать её, но и сами деформируются, без возможности восстановления;
- такой потолок очень сложно отмыть от известкового налёта и следов брызг;
- высокая цена, которая в данном случае неоправданна, поскольку тканевое полотно прослужит меньше винилового.
Тканевый натяжной потолок в ванной, фото :
ПВХ-полотна
Если тканевые потолки больше подходят для гостиной или спальни, то в ванную рекомендованы неприхотливые и водостойкие виниловые полотна.