Видео о натяжном потолке со световыми линиями. Особенности натяжных потолков со световыми линиями
- Видео о натяжном потолке со световыми линиями. Особенности натяжных потолков со световыми линиями
- Световые линии на потолке, как сделать. Варианты конструкций с использованием разных профилей
- Как сделать световые линии на натяжном потолке. Основные особенности
- Световые линии на потолке плюсы и минусы. Плюсы потолка световые линии
- Световые линии на потолке в коридоре. Установка парящей линии с применением профессионального оборудования
Видео о натяжном потолке со световыми линиями. Особенности натяжных потолков со световыми линиями
Относительно новый подход в организации потолочного декора лишь недавно получил широкое признание. При довольно простом, незамысловатом внешнем виде дизайнерского решения реализовать замысел на практике оказалось не так просто. Для изготовления светящихся полос потребуется не меньше сил, чем для двухуровневого декора.
Поэтому, прежде чем приступать к планированию светящихся линий на натяжном потолке, необходимо учитывать определенные ограничения, налагаемые на конструкцию:
- Для подсветки потолочной поверхности используются только светодиодные светильники, никакие другие для данного типа декора не подходят;
- Подавляющее число композиций из светящихся линий строятся, как геометрическая фигура из прямых, ломаных и пересекающихся линий. Криволинейные и дугообразные варианты парящих линий для натяжных потолков, фото, применяются достаточно редко из-за высокой трудоемкости изготовления конструкции;
- Данный тип линейного освещения в натяжном потолке используется как для декоративного оформления, так и в качестве самостоятельного полноценного источника света;
- Цвет свечения определяется типом светодиодного источника света, наличием фильтра и типом натяжного полотна.
Чаще всего используются белые светодиодные линии, в редких случаях желтые или голубые. Цвет свечения определяется типом светодиода, обычно это три базовых – красный, желтый и голубой. Кроме того, натяжной потолок выполняет роль фильтра, несколько уменьшает яркость и насыщенность свечения.
Голубой и белый цвета пользуются наибольшей популярностью
Обычно в одной линии не используют несколько цветов одновременно, так как накладка потолочной поверхности размывает цветной поток , вместо мягкого смешанного освещения образуется цепочка цветных пятен. Поэтому линейные светодиодные светильники, встраиваемые в натяжной потолок, обычно выполняются монохромными.

Световые линии на потолке, как сделать. Варианты конструкций с использованием разных профилей
Сегодня существует несколько самых популярных конструкций натяжных потолков, с расположением на поверхности световых линий. Рассмотрим их более подробно.

Рис.1. Разделительный профиль КП 4075
· Конструкция с использованием разделительного профиля КП 4075 . Он устанавливается на черновое перекрытие и позволяет выполнить монтаж огарпуненых ПВХ-пленок разного цвета и фактуры. Между натянутыми полотнами формируется свободное пространство, предназначенное для крепления LED-ленты. Ширины паза достаточно, чтобы закрепить в нем два ряда ленты. Светодиоды покрываются полупрозрачным полотном: оно придает потолку завершенный внешний вид в любое время суток, делает свечение мягким и равномерным.
Возможности профиля. С его помощью создают горизонтальные или вертикальные световые линии. Если расположить несколько светильников поперек помещения, можно визуально сделать его шире. Для удлинения пространства, следует установить линии вдоль. Также профили позволяют создавать светящиеся геометрические фигуры и хаотичные линии. С их помощью можно визуально зонировать помещение, а также поставить акцент на определенном предмете интерьера.
· Контурный профиль ПФ 5642. Это инновационная стеновая модель, позволяющая создать световые линии на натяжном потолке по периметру. Его конструкция рассчитана на крепление нескольких рядов LED-ленты, которая будет располагаться за полотном.

Рис.2. Контурный профиль ПФ 5642
Возможности профиля. Профиль позволяет дополнить периметр потолка достаточно яркой световой линией: лента устанавливается в паз со светоотражающими стенками. Это делает границы светящейся поверхности более четкими и направляет свет вниз. При необходимости профиль ПФ 5642 можно комбинировать с обычными стеновыми моделями. Это позволяет создавать линии требуемой длины или дополнить подсветкой только одну из стен помещения. Зазор между стеной и полотном можно скрыть простой маскировочной лентой, которая подходит для стандартных профилей. Подсветив потолок по периметру, можно сделать его более выразительным и оригинальным.
Обратите внимание!
Профиль ПФ 5642 рассчитан на гарпунное крепление ПВХ-пленки. Поэтому, если светодиодная лента под полотном выйдет из строя и будет нуждаться в замене, эту работу можно с легкостью выполнить, полностью или частично демонтировав потолок. После завершения работ можно будет без проблем вернуть полотно на место.
Как сделать световые линии на натяжном потолке. Основные особенности
Сразу стоит отметить, что сделать полосы на потолке намного сложнее, чем повесить люстру или поставить точечные светильники. Поэтому чаще всего работу поручают профессионалам. Что касается особенностей, они таковы:
- В качестве источника света применяются только светодиодные лампы и ленты. Это связано с тем, что данный вариант не сильно нагревается при работе и дает яркий ровный свет без мерцаний. Еще один большой плюс – длительный срок службы, не придется лезть в конструкцию и менять источники света через пару лет после установки.
- Проще всего делать композиции, состоящие из прямых линий. Тут может быть много вариантов – от одного прямого элемента до ломаных и узоров с пересекающимися линиями. Можно сделать подсветку с овальными контурами, но она намного сложнее в реализации, поэтому встречается редко.
- Линии служат оригинальным декором, привлекают к себе внимание и являются одним из главных акцентов обстановки. Но если сделать их широкими, а внутри расположить источники света большой яркости, то можно применять этот вариант и как основной свет, главное – соблюдать нормы освещенности для конкретного помещения.
Световые полосы как дополнение к основному свету.
- Чаще всего используется белый свет, который может быть разным – от теплого до естественного или холодного спектра. При этом цвет подсветки зависит не только от ламп, но и от характеристики светофильтра или натяжного полотна, если световой поток идет сквозь него.
- Чтобы менять оттенки подсветки, лучше ставить RGB-ленту . Если важно качественное освещение, то больше подойдет одноцветный вариант большой мощности с частым расположением светодиодов.
Световые линии на потолке плюсы и минусы. Плюсы потолка световые линии
Натяжной потолок со световыми линиями актуален с точки зрения тенденций дизайна интерьеров. Это основной плюс конструкции, делающий ее популярной или, по крайней мере, желанной.
Световые линии дают четкую геометрию, смотрятся сдержанно и лаконично. Именно это соответствует интерьерным трендам. Эта же тенденция царит, в общем, в архитектуре и даже ландшафтном дизайне.
К прочим плюсам относятся:
- Поскольку паз для крепления пленки есть с обеих сторон профиля, его можно расположить на любом участке потолка, не обязательно у стен. Это позволяет: грамотно расположить освещение; создать интересные с дизайнерской точки зрения конфигурации линий на потолке.
- Прикрывающая светодиодную ленту заглушка легко снимается и устанавливается обратно, что упрощает обслуживание светового прибора. При необходимости отремонтировать, или заменить ее, нет необходимости демонтировать потолок .
- Профиль Световые линии можно располагать не только на потолке, но и стенах. Поэтому дизайнеры начали создавать проекты с переходом багета с одной плоскости на другую. Это придает интерьерам глубину, объединяет дизайн, смотрится нетривиально.
Плюсом, как упоминалось, световые линии часто не требуют дополнительного освещения. Соответственно, не нужно крепить на черновой потолок закладные под приборы, использовать протекторные кольца в местах прорези пленки под них, выбирать и покупать сами светильники, люстры. Светодиодная лента, как правило, сберегает больше электроэнергии, чем лампы в люстрах и светильниках. Это еще один плюс натяжного потолка со световыми линиями.

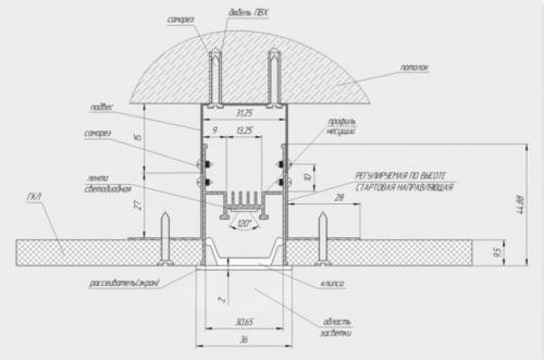
Световые линии на потолке в коридоре. Установка парящей линии с применением профессионального оборудования
Монтаж парящей линии производится в гипсокартонный потолок с профилем-держателем, который обеспечивает дополнительную жёсткость всей конструкции. Данный профиль устанавливается в момент создания металлического каркаса для гипсокартонного потолка.
Схема установки полной конструкции световой линии
Монтаж световых полос в потолок без профиля-держателя
Это бюджетный вариант, но менее прочный. В процессе создания металлического каркаса для гипсокартонного потолка, заранее предусматриваются места для проведения световой линии. В данные пазы устанавливаются собранные системы парящих линий и крепятся к гипсокартону пружинами.
Варианты монтажа:
- Профиль PLS-LOCK-Y25_FM-2000 монтируется в металлический каркас, при этом немного выступает за единую плоскость гипсокартонной конструкции.

- Профиль PLS фиксируется отдельным элементом (при помощи подвесов), не граничит с металлическим каркасом и создает единую плоскость на потолке.

- Фиксация профиля к гипсокартонным листам при помощи клея. Для этого в созданном гипсокартонном потолке вырезается паз 30 мм. на выступающие «крылышки» профиля накладывается клей и профиль приклеивается к поверхности гипсокартона. После высыхания клея следует применить ленту-серпянку и покрыть всё шпаклевкой. Скрытая установка создаёт эффект парящей линии в гипсокартонном потолке.
- Накладные конструкции для создания световых линий. Данные типы световых полос на потолке монтируются поверх гипсокартона. Имеют различное сечение (круглое, угловое, прямоугольное) и заглушки на бока. Данные осветительные приборы легко монтировать, а также проводить ремонтные работы.

Какой метод монтажа более приемлем – зависит от конструктивной особенности потолка из гипсокартона (одноуровневый, многоуровневый), а также от индивидуальных запросов хозяина.

