Световые натяжные потолки своими руками. Плюсы и минусы натяжного светящегося потолка
- Световые натяжные потолки своими руками. Плюсы и минусы натяжного светящегося потолка
- Световые линии на потолке плюсы и минусы. Особенности натяжных потолков со световыми линиями
- Световые линии на натяжном потолке. Виды встроенных линейных светильников для натяжного потолка
- Световые линии натяжной потолок профиль. Варианты конструкций с использованием разных профилей
- Световые линии на стене монтаж. Установка парящей линии с применением профессионального оборудования
- Световые линии на стене своими руками. Монтаж световых полос в потолок без профиля-держателя
Световые натяжные потолки своими руками. Плюсы и минусы натяжного светящегося потолка
Как и любая подвесная конструкция, натяжное покрытие позволяет спрятать огрехи отделки базового потолка, проводку, коммуникации, сделать поверхность гладкой и ровной. Учитывая, что стоимость натяжных конструкций ненамного превышает затраты на любую другую отделку, данный вариант является оптимальным и практичным решением при ремонте.
Разместив под навесным материалом несколько светодиодов, получится создать светящийся потолок. При этом необязательно исключать из интерьера традиционные люстры или стандартные светильники. Полотно с эффектом свечения может стать декоративной подсветкой или украшением интерьера.
Если вы решите использовать другие варианты осветительных приборов, в дальнейшем могут возникнуть трудности с их обслуживанием, поэтому лучше выбирать именно светодиоды. Они излучают достаточно хороший свет и могут применяться, как основное освещение в комнате.
Оригинально будет смотреться потолок, на котором с помощью ленты под покрытием воспроизведен какой-либо рисунок. Если при этом свечение не очень сильное, его можно использовать в качестве ночной подсветки, когда потребуется лишь немного осветить комнату.
Однако такие конструкции не лишены недостатков. Например, если неправильно рассчитать расстояние от светодиодов до пленочного покрытия, получится неравномерная подсветка. Поэтому светящиеся потолки требуют доскональной подготовки и верных расчетов до начала монтажа, так как после установки полотна изменить вы уже ничего не сможете.
Чтобы найти нужное расстояние, потребуется узнать мощность светодиодов. Как правило, величина должна быть не меньше 10-15 см. Следовательно, система заберет у комнаты достаточно много высоты. Для низких комнат это неприемлемо.
Обслуживание скрытой подсветки тоже не получится проводить, поэтому потребуется купить качественные ленты, которые будут долго работать, не требуя замены и ремонта.
Также нужно приобрести специальный трансформатор, для подключения которого понадобится установить на потолочной поверхности несколько преобразователей. Соответственно, это увеличит итоговую стоимость светящегося потолка.
На цену повлияет и установка диммера – устройства, при помощи которого регулируют яркость свечения. Он необходим, когда светодиоды используются не только в качестве подсветки, но и основного источника света.
Световые линии на потолке плюсы и минусы. Особенности натяжных потолков со световыми линиями
Относительно новый подход в организации потолочного декора лишь недавно получил широкое признание. При довольно простом, незамысловатом внешнем виде дизайнерского решения реализовать замысел на практике оказалось не так просто. Для изготовления светящихся полос потребуется не меньше сил, чем для двухуровневого декора.
Поэтому, прежде чем приступать к планированию светящихся линий на натяжном потолке, необходимо учитывать определенные ограничения, налагаемые на конструкцию:
- Для подсветки потолочной поверхности используются только светодиодные светильники, никакие другие для данного типа декора не подходят;
- Подавляющее число композиций из светящихся линий строятся, как геометрическая фигура из прямых, ломаных и пересекающихся линий. Криволинейные и дугообразные варианты парящих линий для натяжных потолков, фото, применяются достаточно редко из-за высокой трудоемкости изготовления конструкции;
- Данный тип линейного освещения в натяжном потолке используется как для декоративного оформления, так и в качестве самостоятельного полноценного источника света;
- Цвет свечения определяется типом светодиодного источника света, наличием фильтра и типом натяжного полотна.
Чаще всего используются белые светодиодные линии, в редких случаях желтые или голубые. Цвет свечения определяется типом светодиода, обычно это три базовых – красный, желтый и голубой. Кроме того, натяжной потолок выполняет роль фильтра, несколько уменьшает яркость и насыщенность свечения.
Голубой и белый цвета пользуются наибольшей популярностью
Обычно в одной линии не используют несколько цветов одновременно, так как накладка потолочной поверхности размывает цветной поток , вместо мягкого смешанного освещения образуется цепочка цветных пятен. Поэтому линейные светодиодные светильники, встраиваемые в натяжной потолок, обычно выполняются монохромными.

Световые линии на натяжном потолке. Виды встроенных линейных светильников для натяжного потолка
Можно использовать только источники света определенного типа. Это связано как с требованиями безопасности, так и с тем, что светящиеся линии должны быть равномерными, без затемненных участков и засветов. Поэтому применяется всего два вида:
- Светодиодные ленты . Лучшее решение, которое можно приклеить как на ровные, так и на овальные линии. Разновидностей очень много, характеристики зависят от количества светодиодов на погонный метр. Если нужна высокая яркость, стоит подбирать варианты с яркими диодами, расположенными в два ряда. Обычно применяют однотонные с естественным или холодным белым светом, но при желании можно ставить и цветные, наибольшей популярностью пользуется подсветка голубого и желтого цветов. За счет рассеивателя получается равномерный световой поток.
- Светодиодные лампы трубчатого типа Т5-Т8 тоже хорошо подойдут для создания световых полос. Их можно применять только при создании ровных линий, лампы дают яркий равномерный свет и часто используются для основного освещения. Длина одного элемента может быть от 50 до 120 см, этот момент надо учесть при планировании линий, иначе не получится нормально разместить светильники и в полосах будут темные участки .
Светодиодная лента позволяет реализовать проекты любой сложности.
Ставить галогенные и другие варианты не стоит, так как они не обеспечат нужного качества света и при работе будут сильно нагреваться, что со временем приведет к пожелтению натяжного потолка.
Световые линии натяжной потолок профиль. Варианты конструкций с использованием разных профилей
Сегодня существует несколько самых популярных конструкций натяжных потолков, с расположением на поверхности световых линий. Рассмотрим их более подробно.

Рис.1. Разделительный профиль КП 4075
· Конструкция с использованием разделительного профиля КП 4075 . Он устанавливается на черновое перекрытие и позволяет выполнить монтаж огарпуненых ПВХ-пленок разного цвета и фактуры. Между натянутыми полотнами формируется свободное пространство, предназначенное для крепления LED-ленты. Ширины паза достаточно, чтобы закрепить в нем два ряда ленты. Светодиоды покрываются полупрозрачным полотном: оно придает потолку завершенный внешний вид в любое время суток, делает свечение мягким и равномерным.
Возможности профиля. С его помощью создают горизонтальные или вертикальные световые линии. Если расположить несколько светильников поперек помещения, можно визуально сделать его шире. Для удлинения пространства, следует установить линии вдоль. Также профили позволяют создавать светящиеся геометрические фигуры и хаотичные линии. С их помощью можно визуально зонировать помещение, а также поставить акцент на определенном предмете интерьера.
· Контурный профиль ПФ 5642. Это инновационная стеновая модель, позволяющая создать световые линии на натяжном потолке по периметру. Его конструкция рассчитана на крепление нескольких рядов LED-ленты, которая будет располагаться за полотном.

Рис.2. Контурный профиль ПФ 5642
Возможности профиля. Профиль позволяет дополнить периметр потолка достаточно яркой световой линией: лента устанавливается в паз со светоотражающими стенками. Это делает границы светящейся поверхности более четкими и направляет свет вниз. При необходимости профиль ПФ 5642 можно комбинировать с обычными стеновыми моделями. Это позволяет создавать линии требуемой длины или дополнить подсветкой только одну из стен помещения. Зазор между стеной и полотном можно скрыть простой маскировочной лентой, которая подходит для стандартных профилей. Подсветив потолок по периметру, можно сделать его более выразительным и оригинальным.
Обратите внимание!
Профиль ПФ 5642 рассчитан на гарпунное крепление ПВХ-пленки. Поэтому, если светодиодная лента под полотном выйдет из строя и будет нуждаться в замене, эту работу можно с легкостью выполнить, полностью или частично демонтировав потолок. После завершения работ можно будет без проблем вернуть полотно на место.
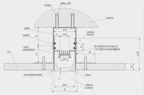
Световые линии на стене монтаж. Установка парящей линии с применением профессионального оборудования
Монтаж парящей линии производится в гипсокартонный потолок с профилем-держателем, который обеспечивает дополнительную жёсткость всей конструкции. Данный профиль устанавливается в момент создания металлического каркаса для гипсокартонного потолка.
Схема установки полной конструкции световой линии
Монтаж световых полос в потолок без профиля-держателя
Это бюджетный вариант, но менее прочный. В процессе создания металлического каркаса для гипсокартонного потолка, заранее предусматриваются места для проведения световой линии. В данные пазы устанавливаются собранные системы парящих линий и крепятся к гипсокартону пружинами.
Варианты монтажа:
- Профиль PLS-LOCK-Y25_FM-2000 монтируется в металлический каркас, при этом немного выступает за единую плоскость гипсокартонной конструкции.
- Профиль PLS фиксируется отдельным элементом (при помощи подвесов), не граничит с металлическим каркасом и создает единую плоскость на потолке.
- Фиксация профиля к гипсокартонным листам при помощи клея. Для этого в созданном гипсокартонном потолке вырезается паз 30 мм. на выступающие «крылышки» профиля накладывается клей и профиль приклеивается к поверхности гипсокартона. После высыхания клея следует применить ленту-серпянку и покрыть всё шпаклевкой. Скрытая установка создаёт эффект парящей линии в гипсокартонном потолке.
- Накладные конструкции для создания световых линий. Данные типы световых полос на потолке монтируются поверх гипсокартона. Имеют различное сечение (круглое, угловое, прямоугольное) и заглушки на бока. Данные осветительные приборы легко монтировать, а также проводить ремонтные работы.

Какой метод монтажа более приемлем – зависит от конструктивной особенности потолка из гипсокартона (одноуровневый, многоуровневый), а также от индивидуальных запросов хозяина.
Световые линии на стене своими руками. Монтаж световых полос в потолок без профиля-держателя
Это бюджетный вариант, но менее прочный. В процессе создания металлического каркаса для гипсокартонного потолка, заранее предусматриваются места для проведения световой линии. В данные пазы устанавливаются собранные системы парящих линий и крепятся к гипсокартону пружинами.

Варианты монтажа:
- Профиль PLS-LOCK-Y25_FM-2000 монтируется в металлический каркас, при этом немного выступает за единую плоскость гипсокартонной конструкции.

- Профиль PLS фиксируется отдельным элементом (при помощи подвесов), не граничит с металлическим каркасом и создает единую плоскость на потолке.

- Фиксация профиля к гипсокартонным листам при помощи клея. Для этого в созданном гипсокартонном потолке вырезается паз 30 мм. на выступающие «крылышки» профиля накладывается клей и профиль приклеивается к поверхности гипсокартона. После высыхания клея следует применить ленту-серпянку и покрыть всё шпаклевкой. Скрытая установка создаёт эффект парящей линии в гипсокартонном потолке.
- Накладные конструкции для создания световых линий. Данные типы световых полос на потолке монтируются поверх гипсокартона. Имеют различное сечение (круглое, угловое, прямоугольное) и заглушки на бока. Данные осветительные приборы легко монтировать, а также проводить ремонтные работы.
Какой метод монтажа более приемлем – зависит от конструктивной особенности потолка из гипсокартона (одноуровневый, многоуровневый), а также от индивидуальных запросов хозяина.

